Verkocht

Vul met onderstaand formulier uw bieding in voor deze woning. Alle velden zijn verplicht voor een juiste bieding met uitzondering van het opmerkingen veld.
Let op! U kunt pas een bod uitbrengen nadat u deze woning heeft bezichtigt. Biedingen zonder bezichting vooraf worden niet in behandeling genomen.
Gezellig en mooi gelegen appartement met onderliggende garagebox.
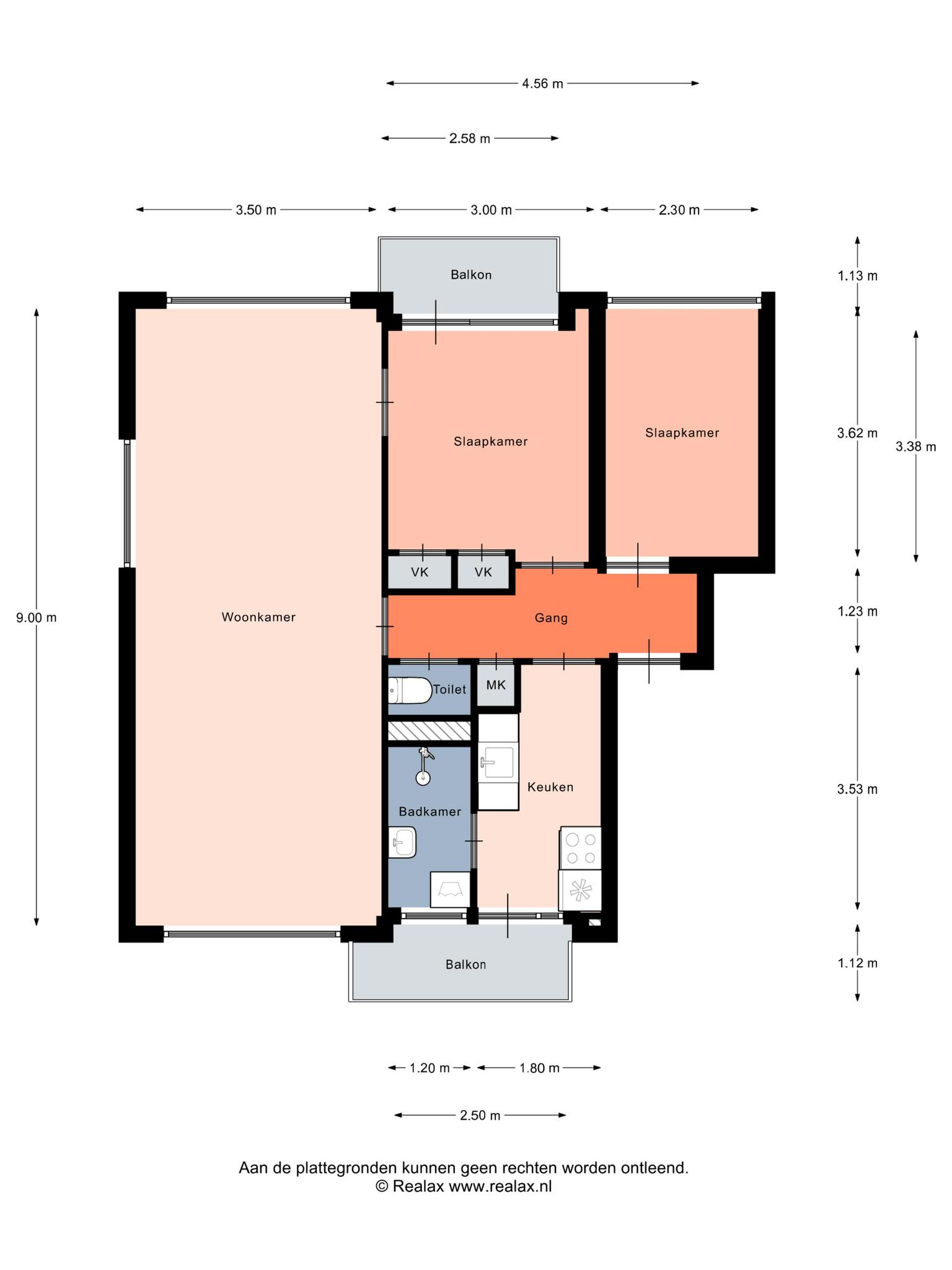
Het appartement heeft een zeer royale woonkamer (32m2) met veel licht, 2 kleine balkons en 2 slaapkamers.
Het appartement is netjes verzorgd met een nette wand en vloerafwerking en verzorgde keuken en sanitair.
Recreëren kun je op Stadspark Staddijk en de Hatertse Vennen want dat ligt om de hoek.
Begane grond:
Gemeenschappelijke entree met trappenhuis en toegang tot de fietsenberging.
1e woonlaag:
Entree, meterkast, toilet, doorzon woonkamer, 2 slaapkamers waarvan 1 met balkon,keuken met balkon, compacte badkamer.
De vloer van het appartement is voorzien van een laminaatvloer de wanden zijn voorzien van stucwerk.
Keuken:
Gesloten keuken met rechte opstelling en voorzien van een los staand gasfornuis met ovenen los staande koelkast.
Sanitair:
Compacte badkamer met ruime douche en wastafel.
Op deze badkamer is ook de aansluiting voor de wasmachine en de CV ketel.
Berging+Garage:
Op de begane grond vindt u een royale fietsenberging. (3×4 meter)
Tevens hoort bij dit appartement een royale onderliggende garagebox.( 3,5×5,5 meter)
Bijzonderheden:
– Kozijnen met dubbel glas
– Parkeren is gratis en er zijn voldoende parkeerplaatsen voor de deur.
– Balkon (2 stuks) dus altijd zon.
– Verwarming eigen CV ketel Remeha bwjr 2020 huurketel kosten €34,75 pmnd
– Servicekosten á € 245,61 per maand
– Energielabel D
– Bouwjaar: 1967
– Woonoppervlak: ca. 68m2 en een berging van ca. 12m2 en een garage van 19m2
-Voormalig 4 kamer appartement en naar wens weer eenvoudig een extra slaapkamer te realiseren.
Meer weten over deze woning of een vrijblijvende afspraak inplannen? Neem dan contact met ons op via onderstaand contact formulier.
© 2026 Homan Makelaardij - Alle rechten voorbehouden
Privacy Beleid Sitemap
© 2026 Homan Makelaardij - Alle rechten voorbehouden
Privacy Beleid Sitemap