Beschikbaar

Vul met onderstaand formulier uw bieding in voor deze woning. Alle velden zijn verplicht voor een juiste bieding met uitzondering van het opmerkingen veld.
Let op! U kunt pas een bod uitbrengen nadat u deze woning heeft bezichtigt. Biedingen zonder bezichting vooraf worden niet in behandeling genomen.
In de geliefde wijk St. Anna ligt deze sfeervolle en ruime 2 onder 1 kap woning met 3 slaapkamers, een oprit en verrassende diepe tuin op 510 m2 perceel.
De woning biedt veel ruimte dankzij de diepe keuken, bijkeuken en badkamer aan de achterzijde.
Op de begane grond geniet je van veel licht mede door de erker aan de voorzijde.
Naast een eigen oprit geniet je van een royale tuin van ruim 45 meter diep en 7,5 meter breed.
De woning vraagt om een modernisering en kan daarmee volledig naar eigen smaak gemaakt worden.
De centrale ligging van de wijk St. Anna zorgt ervoor dat je op loopafstand woont van het Radboud UMC, Radboud Universiteit, CWZ ziekenhuis en de HAN.
Ook het stadscentrum, diverse winkels, sportvoorzieningen, openbaar vervoer en parken zoals het Goffertpark zijn eenvoudig bereikbaar per fiets of te voet.
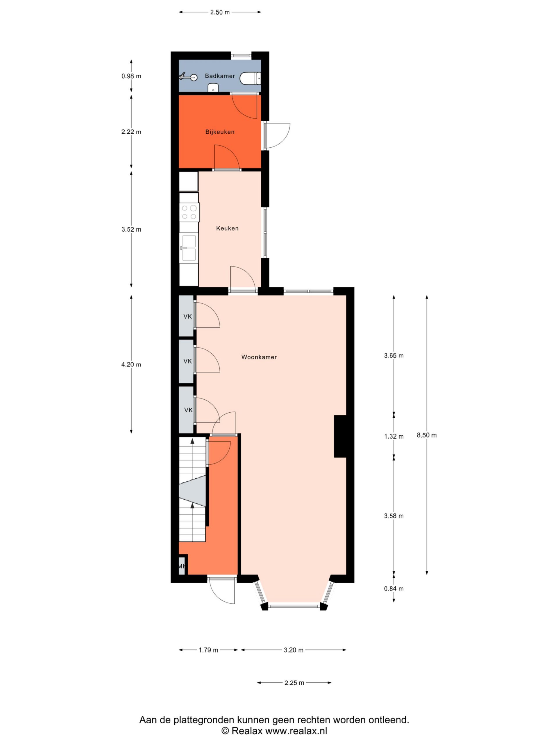
Indeling:
Kelder:
Kelder bereikbaar via de hal voor opslag van diverse spullen.
Begane grond:
Hal met meterkast en trap naar de kelder en 1e verdieping, woonkamer met inbouwkasten, veel licht en houten parketvloer, gesloten keuken, bijkeuken en badkamer.
1e verdieping
Overloop, separaat toilet met wasbak en 3 slaapkamers. De voorste slaapkamer is voorzien van een balkon met openslaande deuren.
Keuken:
Gesloten keuken met rechte opstelling, voorzien van koelkast, gasfornuis, spoelbak en afzuiging.
Sanitair:
Badkamer met douchecabine, toilet en wastafel op de begane grond.
Toilet met wastafel op de 1e verdieping.
Tuin:
Royale achtertuin (ruim 45 meter diep, 7,5 meter breed) met garage en berging.
De zeer zonnige achtertuin is altijd in gebruik geweest als moestuin en er is een zee aan ruimte om de riante kavel van maar liefst 510 vierkante meter opnieuw in te richten.
Bijzonderheden:
– Woning grotendeels voorzien van kunststof kozijnen en dubbel glas. Zonwering achter.
– CV ketel Remeha uit 2016
– Bouwjaar: 1926.
– Woonoppervlakte: 106 m2, inhoud: 265 m3.
– Energielabel C, deels kunststof kozijnen en dakisolatie.
– In de koopakte wordt een ‘niet-zelfbewonings, ouderdoms & asbest clausule’ opgenomen.
Meer weten over deze woning of een vrijblijvende afspraak inplannen? Neem dan contact met ons op via onderstaand contact formulier.
© 2026 Homan Makelaardij - Alle rechten voorbehouden
Privacy Beleid Sitemap
© 2026 Homan Makelaardij - Alle rechten voorbehouden
Privacy Beleid Sitemap